產品簡介
YBS搖擺篩也稱圓形搖擺篩,是通過特殊的機械結構設計實現了仿效人工篩分原理的一種篩分機械,具有產量大、效率高以及篩分精度高等特點。由于結構和工作原理的特性,物料在篩面呈現漸開螺旋線運動,所以該系列設備能滿足所有精細與細范圍的粉末和微粒狀物料,特別是難處理物料的篩分作業,廣泛應用于化工、冶金、有色金屬、食品、磨料等行業。
適用行業
化工、醫藥、糖鹽業、食品與香料、茶葉、飼料、塑料、橡膠、化肥、木業及膠合板行業
適用物料
調味品、胡椒粉、葡萄糖酸內脂、食品添加劑等
顆粒藥丸、微丸等
金屬、冶金粉末等
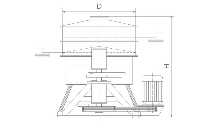
產品結構
工作原理
YBS搖擺篩是一種仿人工搖動的低頻旋振篩,把平面圓周運動──篩和向上拋物運動──簸結合起來,形成了非線性三維翻滾運動,使物料再篩面上從中心到外緣均勻分散,即物料以漸開螺旋運動從中心分散開來進而完成篩分作業。這種運動軌跡使物料在相對較小的篩面上走過相對較長的路徑,從而提高篩分精度和效率,再配合清網裝置可獲得更加理想的篩分效果,使設備適用于圓形狀、圓柱狀、片狀以及不規則形狀易堵網且需要精細篩分的物料。
YBS搖擺篩物料軌跡示意圖
產品特點
1、設計合理,有利于提高設備使用壽命,降低運行及維修成本;
2、采用低頻率,小負荷工作,動力系統對設備及物料破損作用小;
3、設備相對體積小,重量輕,安裝簡單,維修方便且動力消耗少,噪聲污染小;
4、相對處理量大,篩分效率高,搖擺篩篩分精度一般在95%以上;
5、全封閉結構,而且密封效果好,基本不存在物料粉塵污染現象;
6、出料口可在360°圓周內任意調定,便于工藝布置;
7、篩網更換方便,可滿足一般物料的干,濕式分級要求;
8、篩面可方便地加設清網裝置,可有效解決篩面堵塞問題。
清網裝置
彈力球清網
此形式在篩網和托球板中間的高性能彈跳球,通過彈跳球不規則的擊打篩網,形成二次協振完成清網防堵。此結構簡單易行、效果顯著,適用于大多數篩分作業的清網和防堵。
轉刷清網
轉刷清網系統依靠布置在篩網下的毛刷旋轉清網,適用于球形、結晶體以及脆性物料,此機構轉刷的支持臂由安裝在底盤上的減速器驅動。
氣流清網
氣流清網是通過鼓風機將空氣或其他氣體通過中央氣孔吹入,并沿噴嘴臂分散。噴嘴處的氣流速度可達120 m/s,能在噴嘴旋轉處產生流動床效果,使得物料四處分散,這樣可由下而上清除擁堵在篩網網孔的顆粒,使其他的細物料在篩機的機械運動作用下通過篩孔,主要用于處理粘性、油性、潤滑或產生靜電的物料的篩分清網裝置。
氣流和刷清網
篩分塑料粉末等許多精細的產品時,除使用氣流清網外,還可配套使用轉刷清網,以便清除篩網上的粗顆粒。
過濾裝置
鋼質或橡膠刮板在篩網上旋轉,能將速容咖啡等塊狀產品從篩網上輕柔濾除。
超聲波清網
超聲波清網適用于特細物料的處理。該系統通過超聲波發生器發生的高頻振動傳到篩網上達到清網目的,該裝置不僅可有效清網防堵,而且能顯著提高生產能力。另外,其式樣可及時更新,滿足不同篩分工藝需要。
工藝優化
YBS搖擺篩通過組合變換后短時間內可使通過能力與篩分精度成倍提高。

型號說明